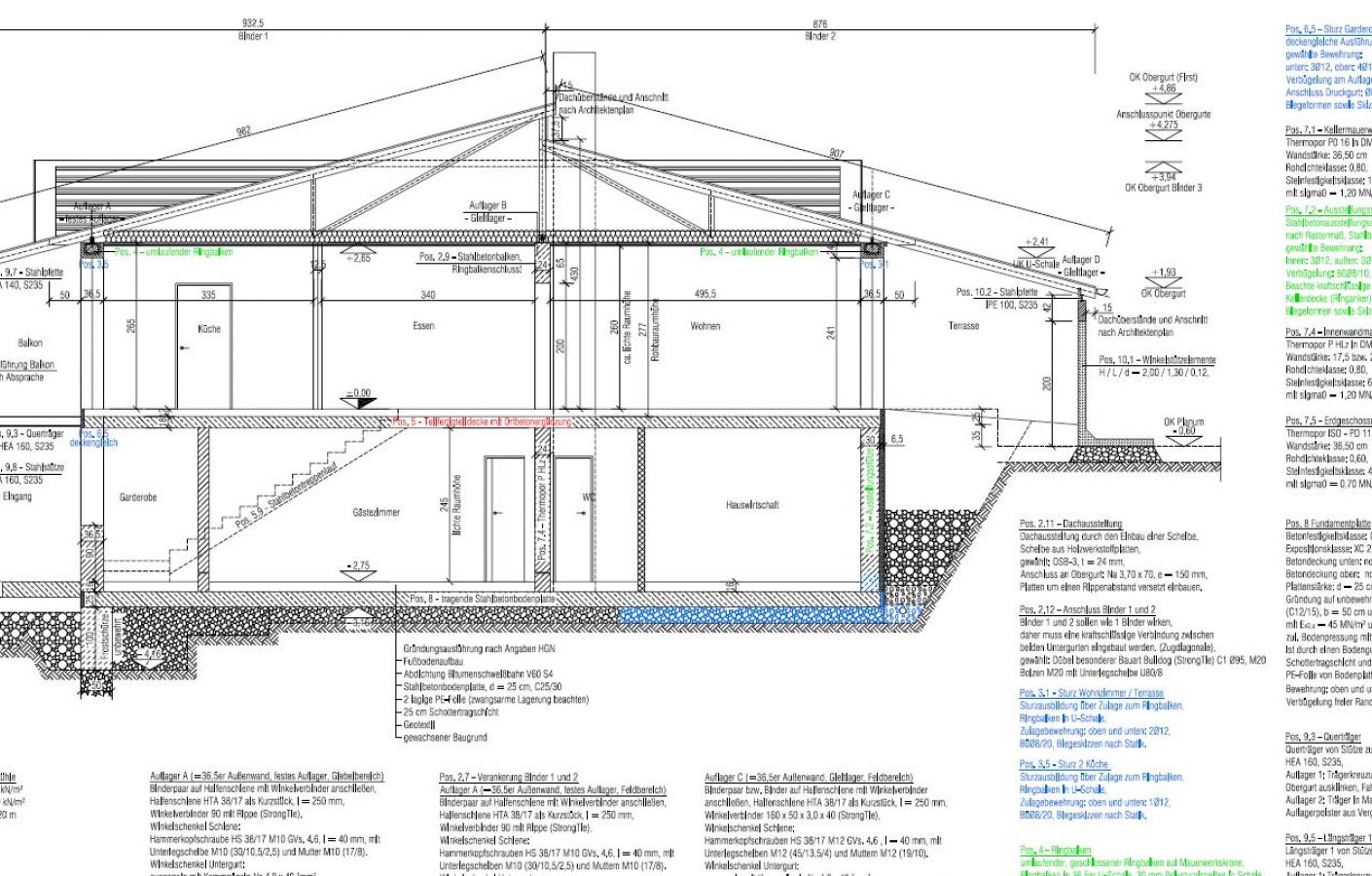
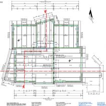
Schnitt.JPG

Tragwerksplanung für ein EFH in Nordhausen (2)

Wir führten 2009 die komplette Tragwerksplanung für ein Einfamilienhaus in Nordhausen durch. Architekt: R. Schunke (FAI)

Ausführungszeitraum: 2009
Auftraggeber: Privat
Gesamtinvestition: -/-