DSCN0403 (Web).JPG

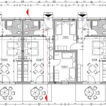
Neubau von 3 Ferienwohnungen

Der Bauherr gab bei uns die Planung eines Neubaues mit 3 intergrierten Ferienwohnungen in Auftrag. Alles sollte ebenerdig und kompakt sein. In kürzester Bauzeit wurde dieses Projekt zur Zufriedenheit der Kundschaft umgesetzt. Unsere Leistungen: Gebäudeplanung, Tragwerksplanung, Ausschreibung und Bauleitung Rohbau

Ausführungszeitraum: 2013
Auftraggeber: Privat
Gesamtinvestition: 275.000 EUR