Decke1.JPG

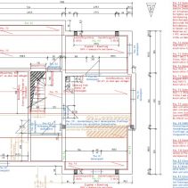
Tragwerksplanung für ein EFH in Deutsch-Evern

Bei diesem Vorhaben wurden wir mit der Ausführungsplanung (Tragwerksplanung) für ein 2-geschossigen Einfamilienhaus-Neubau beauftragt

Ausführungszeitraum: 2011
Auftraggeber: Privat
Gesamtinvestition: -/-